House for Another

House for Another

  • location: Moscow, Russia

    academic individual project at LMU in collaboration with MARCH

    01/01/2018-01/06/2018

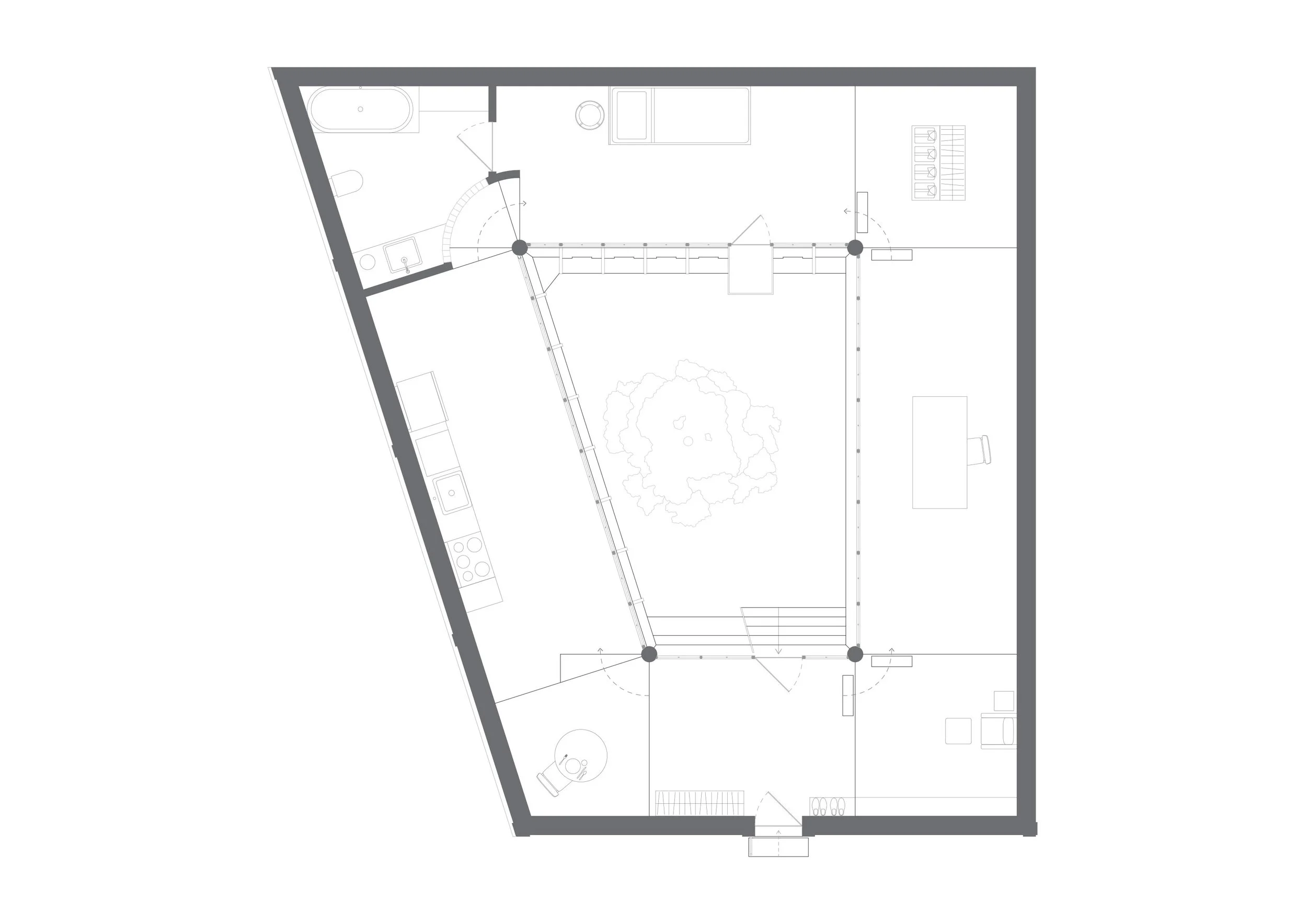
  • My last project in my first year of university was designing a house for one of my peers.

    I was assigned an empty square in Moscow and a classmate that I would be creating a project for. I had to interview him and constuct a design for his house based on his neads and on the location.

    The concept of the project is to combine the sence of emptiness and serenity that will support the atmosphere of the forgetten square and allow the resident to live in solitude and peace.

Previous
Previous

BATH HOUSE